Holborn Hill, MILLOM

£75,000

4 Bedrooms / 1 Bathrooms / 2 Reception

  • Chain Free
  • Mid Terrrace
  • Ideal Family Home
  • Moderisation Required
  • Competitively Priced
  • Large Garden
  • Work Shop/Storage
  • Viewing Recommended

14 photos

  • Facebook  Twitter  Google +  Pinterest

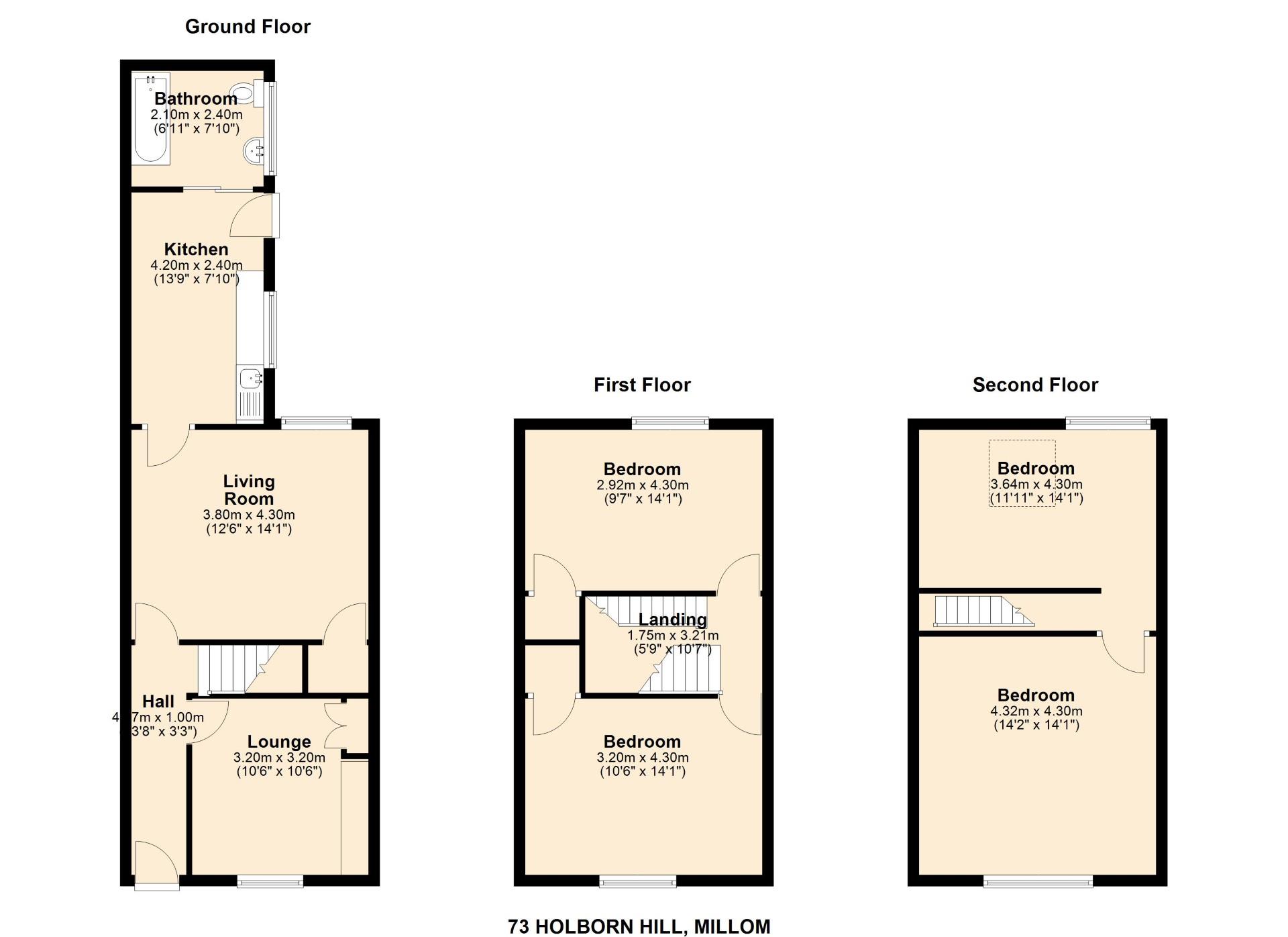
REDUCED FOR QUICK SALE - Home and Finance are please to bring to the market this four bedroom mid terrace family home on the ever popular area of Holborn Hill, just a short distance from Millom Town Centre. In need of modernisation the accommodation is over three floors and briefly comprises of entrance hallway, two reception rooms, kitchen, ground floor bathroom, two bedroom to the first floor and a further two bedrooms to the second floor. To the rear of the property is a yard which provides access to the rear garden and work shop. If you are looking for something to put your own stamp on then this is for you! Internal viewing is recommended.

Services: All Mains Viewing By Appointment Via The Agents
Council Tax Band A
EPC RATING D

Reception Room One 3.15m (10'4") x 2.82m (9'3")
Hard wood front door provides access to the hallway leading to two receptions and kitchen. The first reception room has a hardwood double glazed window to the front aspect, gas fire, radiator, power and light.

Reception Room Two 3.66m (12'0") x 3.96m (13'0")
With Upvc window to the rear aspect, radiator, gas fire, power and lights. Under stairs storage.

Kitchen 3.66m (12'0") x 2.34m (7'8")
Having a good range of fitted base units with contrasting work surfaces with inset sink unit. Upvc double glazed door and window to the side elevation, gas cooker point. Radiator, power and light.

Bathroom 2.01m (6'7") x 1.90m (6'3")
Ground floor bathroom comprising of bath with over bath shower, WC and pedestal wash hand basin. Part tiled walls, tiled floors and Upvc double glazed window to the side aspect.

Stairs from the hallway provide access to the first floor landing.

Bedroom 3.96m (13'0") x 3.15m (10'4")
Hard wood double glazed window to the front aspect, built in storage cupboard, radiator, power and light.

Bedroom 4.04m (13'3") x 2.87m (9'5")
Double glazed window to the rear aspect, radiator, power and light.

Stairs from the second floor landing provide access to the second floor.

Bedroom 4.14m (13'7") x 4.01m (13'2")
(Some restricted head height), double glazed window to the front aspect, radiator, power and light.

Bedroom 4.04m (13'3") x 3.71m (12'2")
(Some restricted head height), double glazed window to the rear aspect along with roof window providing views of the Estuary. Radiator, power and light.

Rear Yard
To the rear of the property is an enclosed rear yard with gate providing access to the rear garden.

Garden
A good size garden mostly laid to lawn with established borders. to the rear of the garden is a useful work shop/store with power and light.

Reference: HOF1002669


Disclaimer

These particulars are intended to give a fair description of the property but their accuracy cannot be guaranteed, and they do not constitute an offer of contract. Intending purchasers must rely on their own inspection of the property. None of the above appliances/services have been tested by ourselves. We recommend purchasers arrange for a qualified person to check all appliances/services before legal commitment.

Let property Info;
Working Applicants Conditions of Rental:

* 2 References
* One Months Rent as a Deposit
* One Months Rent in Advance
* Applicants aged over 21

Housing Benefit Applicants Conditions of Rental:

* 2 References
* One Months Rent in Advance
* Deposit Guarantee scheme
* Applicants aged over 21

Home & Finance are regulated by The Financial Conduct Authority and are members of the Residential Landlords Association (www.rla.org.uk) and The Property Ombudsman (www.tpo.co.uk) Home and Finance Client account has client money protection, to view our Client Money Protection Certificate please click the CMP logo below to see our Cert

Members